
Bestemmingsplan wijk De Bakkerij naar de raad

Het college van B&W stelt aan de gemeenteraad voor het bestemmingsplan De Bakkerij gewijzigd vast te stellen. Het ontwerpbestemmingsplan heeft van 23 maart 2022 tot en met 4 mei 2022 ter inzage gelegen. Er zijn zeventien zienswijzen op het ontwerpbestemmingsplan De Bakkerij ontvangen. Op 23 maart 2023 staat de vaststelling van het bestemmingsplan op de agenda van de raadsvergadering.
Het college heeft over de zeventien zienswijzen een reactienota opgesteld waarin ingegaan wordt op de zienswijzen. De zienswijzen hebben niet geleid tot grote wijzigingen in het bestemmingsplan.
Wethouder Jan Peter van der Sluis: “De Bakkerij is een belangrijke woningbouwontwikkeling voor IJsselmuiden. Er is een grote woningbehoefte en in deze nieuwe wijk is straks ruimte voor 303 woningen. Dat is een forse uitbreiding van het dorp en bij zo’n grote ontwikkeling vraagt het ook wat van de omgeving. Er zijn verschillende zienswijzen ingediend. Daar is goed naar gekeken en er is goed geluisterd naar de indieners ervan. Ik ben dan ook blij dat we voor een belangrijk deel wijzigingen in het bestemmingsplan hebben kunnen doorvoeren en zo bezwaren hebben kunnen wegnemen. Er is door de omgeving volop met ons meegedacht om het plan nog beter en mooier te maken.“
Wijzigingen naar aanleiding van de zienswijzen
Naar aanleiding van een aantal zienswijzen zijn wijzigingen in het bestemmingsplan aangebracht: de hoogte en de lengte van het geluidscherm achter het transportbedrijf aan de Plasweg worden teruggebracht; de hoogte van enkele woongebouwen en woningen worden in het plan naar beneden bijgesteld. Alle indieners van zienswijzen hebben een brief ontvangen met een reactie op de door hen ingediende zienswijze.
Onderzoek uitstoot stikstof realisatie De Bakkerij
Voor het ontwerpbestemmingsplan is de stikstofberekening gebaseerd op de gebruiksfase. In november 2022 heeft er een gerechtelijke uitspraak plaatsgevonden over stikstof (Porthos-project) en op basis daarvan moet ook de aanlegfase meegenomen worden in het onderzoek. Vervolgens is in januari 2023 het rekenprogramma Aerius aangepast. Met dit nieuwe rekenprogramma is een stikstofberekening voor De Bakkerij gedaan en daaruit blijkt dat er geen stikstofdepositie plaatsvindt op de omringende natura 2000-gebieden, behalve een zeer geringe depositie van maximaal 0,01 mol/ha/jr op de Rijntakken. Dit zal naar alle waarschijnlijkheid geen significant negatief effect hebben op de instandhoudingsdoelstellingen van de Rijntakken. Om dit aan te kunnen tonen, wordt er momenteel een ecologische beoordeling opgesteld.
Beeldkwaliteitsplan
Het ontwerpbeeldkwaliteitsplan De Bakkerij lag tot 8 februari 2023 ter inzage. Na behandeling van de zienswijzen zal het ontwerpbeeldkwaliteitsplan ter vaststelling voorgelegd worden aan de gemeenteraad.
Vervolg
Op 13 maart 2023 wordt dit onderwerp in de commissie ruimte behandeld en op 23 maart 2022 staat het op de agenda tijdens de raadsvergadering.
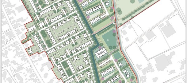
Een bestemmingsplan met een dorps karakter
De wijk De Bakkerij krijgt een dorps karakter, dat passend is binnen IJsselmuiden. Dit betekent een kleine schaal van de openbare ruimte en een mix van woningen in een straat. Deze mix aan woningtypes levert een gevarieerd en daarmee dorps beeld op. Kenmerkend voor dorps bouwen is het toepassen van een kap op het grootste deel van de bebouwing. Op een beperkt aantal plekken is voorzien in appartementen in een aantal kleinere appartementengebouwen. De Ringdijk blijft als landelijk element herkenbaar en markeert een duidelijke grens tussen het landelijk gebied en het dorp.
Verkoop woningen en meer informatie
Het is nog niet duidelijk wanneer de woningen in verkoop gaan en wanneer de start van de bouw kan plaatsvinden. Eerst moet het bestemmingsplan onherroepelijk worden en het terrein bouwrijp gemaakt worden. Meer informatie over De Bakkerij is te vinden via www.nieuwbouw-ijsselmuiden.nl.
Reacties op 'Bestemmingsplan wijk De Bakkerij naar de raad'
Geen berichten gevonden
Log in om te kunnen reageren op nieuwsberichten.